MZ Ticaret
MZ Ticaret
Left image
Functional Living Spaces with MZ Ticaret: Production Quality and Technical Details in Two-Room Container Solutions As MZ Ticaret, we culminate our deep experience in the modular construction sector and innovative production vision with our Two-Room Container models that cater to broader and segmented needs.
Right image






By combining the compact comfort offered by our single‑room models with a more functional interior architecture, we produce professional solutions across a wide range—from construction sites to hobby gardens, from emergency housing areas to boutique offices. Our two‑room structures, in projects requiring privacy and versatility, convey MZ Ticaret’s high material quality and flawless workmanship standards in every square meter.

Space Management and Architectural Functionality in Two‑Room Design
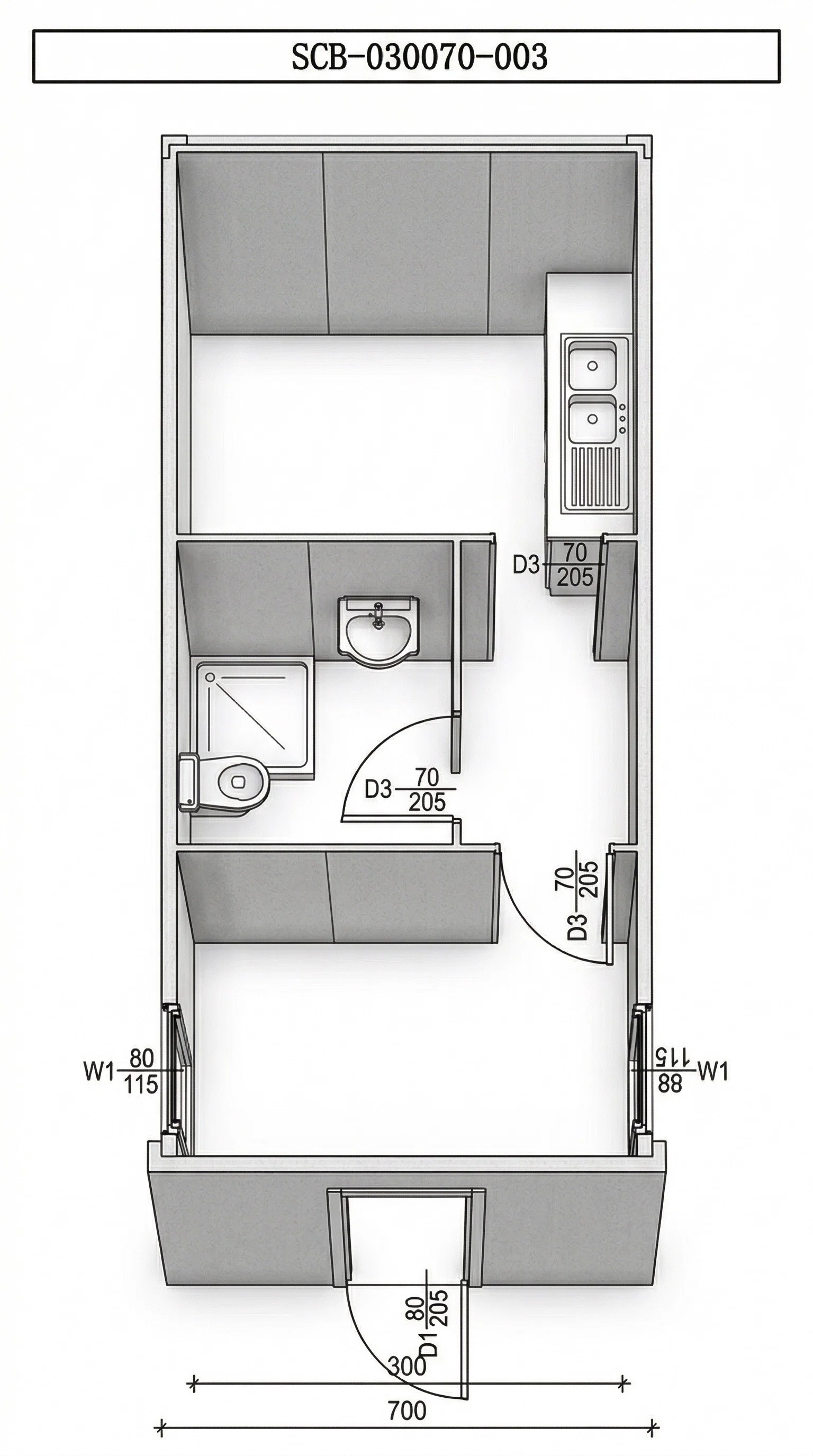
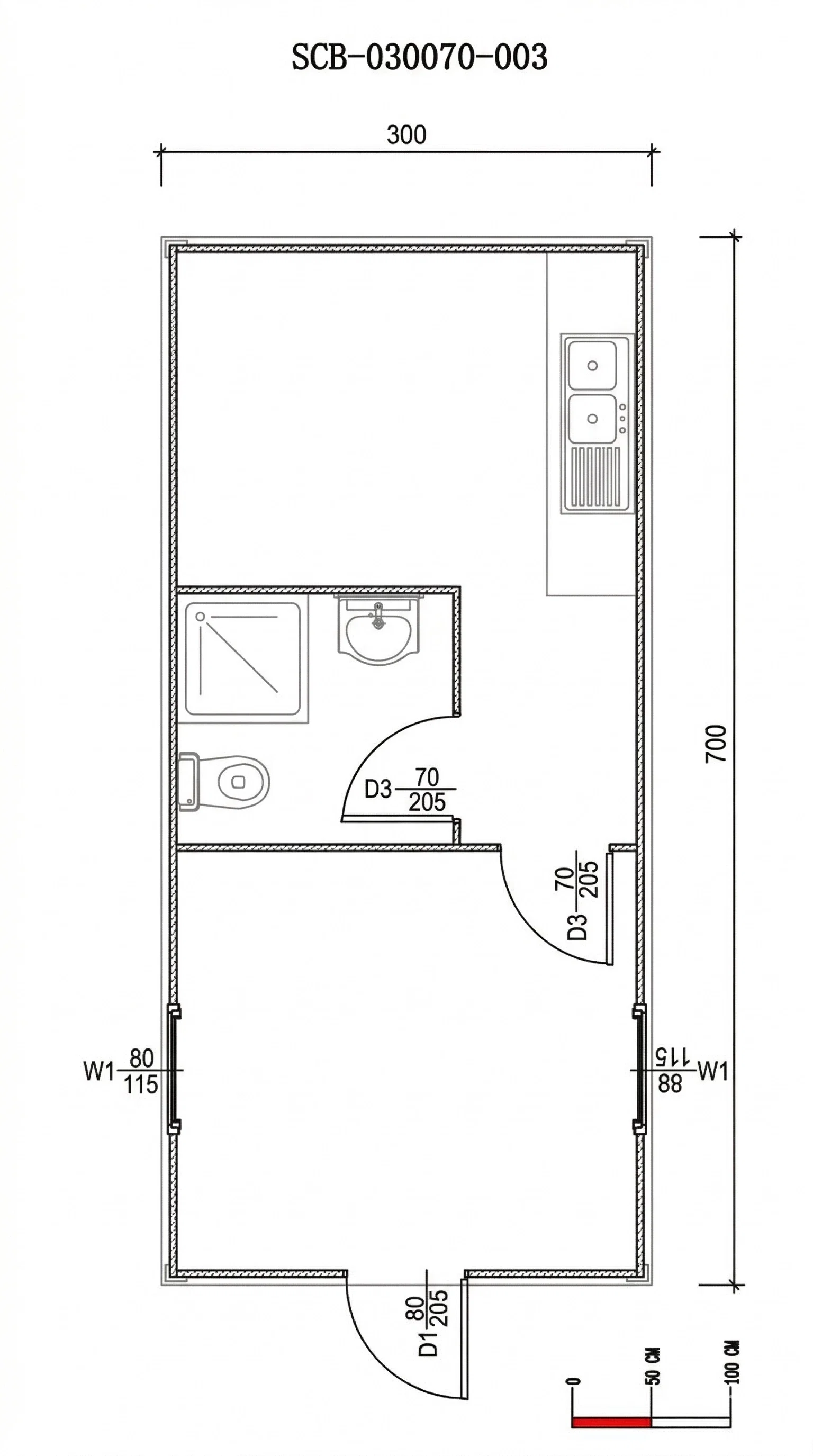
In our two‑room container production, our main focus is to partition the limited total area in the most efficient way. These structures, which we typically design in 3×7 meter or larger projections, offer two independent living spaces thanks to partition wall panels used inside.

First image
Second image
Section image
This design allows one room to serve as a bedroom while the other can be used as a living area or kitchen niche; it also enables one section to function as a manager’s office and the other as a meeting or secretarial area in a professional work setting. At MZ Ticaret, we position partition walls not only according to static requirements but also taking into account the user’s furniture layout and movement ergonomics, using millimetric calculations. Every detail, from the swing direction of interior doors to the location of outlets, is optimized to ensure that both rooms remain independent comfort zones.
Static Strength and Galvanized Steel Body Technology Dividing the structure into two rooms requires proper distribution of the interior static balance and ceiling load. In MZ Ticaret's two-room container models, we build the main frame structure from high-strength, corrosion-resistant, lifetime-resistant galvanized steel profiles. The cross braces we use in the lower chassis system prevent flexing at the structure's contact with the ground, while the special bands applied to the ceiling frame completely eliminate the risk of sagging in wide openings. The partition wall between the two rooms is integrated into the system as a support element that increases the overall rigidity of the structure. Thus, even if your container is moved to different locations multiple times or operated with a crane, you will not encounter structural deformations such as doors failing to close or wall panels opening. The MZ Ticaret signature promises unwavering structural integrity even in the harshest field conditions.
First image
Second image
Section image
Advanced Sandwich Panel Technology and Thermally Insulated Compartments In our two-room containers, we maintain high insulation standards not only on the exterior but also in the interior partitions that separate the rooms. The high-density polyurethane or stone wool-filled sandwich panels used on the exterior walls completely isolate the structure from external climatic conditions; the special panels used in the interior partition walls minimize sound transmission between rooms. This is a critical comfort factor especially when one room is used for rest and the other for work simultaneously. The double-glazed (heat-insulating) PVC sash systems used in the windows block external noise and temperature changes, providing stable indoor air quality. Thanks to MZ Ticaret's climate-friendly production, you can efficiently manage heat transfer between the two rooms with a single air conditioner or heater unit, reducing your energy costs.
**Advanced Sandwich Panel Technology and Thermally Insulated Compartments** In our two‑room containers, we maintain high insulation standards not only on the exterior but also in the interior partitions that separate the rooms. The high‑density polyurethane or stone‑wool‑filled sandwich panels used on the exterior walls completely isolate the structure from external climatic conditions, while the special panels used in the interior partition walls minimize sound transmission between rooms. This is a critical comfort factor, especially when one room is used for rest and the other for simultaneous work activities. The double‑glazed (heat‑insulating) PVC sash systems used in the windows block external noise and temperature changes, providing stable indoor air quality. Thanks to MZ Ticaret’s climate‑friendly production, you can efficiently manage heat transfer between the two rooms with a single air‑conditioning or heating unit, reducing your energy costs. **Interior Equipment and Electrical‑Hydraulic Installation Standards** At MZ Ticaret, we deliver our two‑room containers on a “plug‑and‑play” basis, with all installation details resolved. Both rooms come standard with independent lighting fixtures, sufficient power outlets, and internet/telephone lines. The fire‑resistant cable channels and automatic fuse boxes used in our electrical installation take fire safety to the highest level. At the request of our customers, we also professionally integrate a compact wet area (WC/Shower) or mini kitchen counter between the two rooms or into a corner of one of the rooms. The antibacterial PVC mineflo coatings applied to the betopan floors, which are resistant to water, provide a hygienic and modern look in both rooms. The lightweight yet durable American panel doors used in the interior doors save space while completing the aesthetic integrity. **Customized Solutions and Mobility Advantage with MZ Ticaret** Our two‑room container models can be customized beyond standard dimensions to meet our customers’ specific site conditions and usage purposes. Increasing the number of windows, relocating the entrance door, or applying paint finishes that match your corporate colors on the exterior are all within our production flexibility. The mobile nature of our structures provides a significant advantage when your project is finished or you need to change location; you can move your two‑room comfort to any place with a crane. At MZ Ticaret, we continue to be your professional solution partner at every stage, from pre‑sales technical consulting to post‑sales service support. If you are looking for a durable, functional, and aesthetic two‑room container, it is time to experience MZ Ticaret’s quality.
First image