
MZ Ticaret's Production Vision in the Modular Building Standards of the Future and Single-Room Container Technologies
As MZ Ticaret, we build not only living spaces but also durable living environments that blend high engineering discipline, with our single-room container solutions offered at the intersection of modern architecture and industrial needs. The quality-focused approach at the core of our company's production philosophy is evident in every detail, from raw material selection to the final assembly stage.

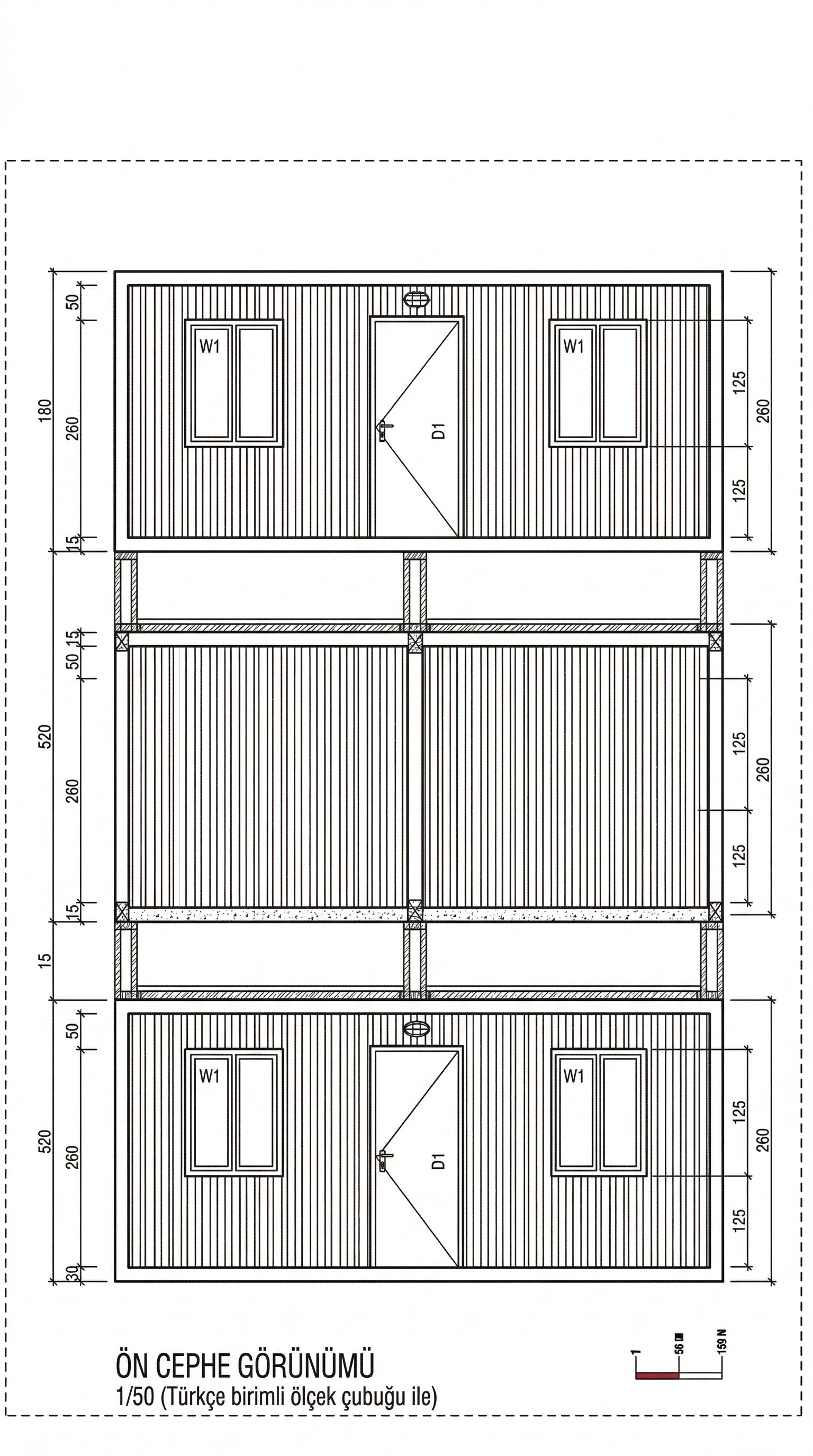
Container production may appear at first glance to be a simple metal box manufacturing process, but under the MZ Trade umbrella it transforms into an engineering art executed with the perfect harmony of static calculations, heat physics, and user ergonomics. In particular, our 3 × 7 meter model, coded SCB‑030070‑001, stands out as an efficiency benchmark that redefines industry standards. We believe that prefabricated structures should be more than a temporary solution—they should be a comfortable and safe investment. With this conviction, we treat each container unit with meticulous care as if we were building a permanent home, delivering structures that will serve our customers smoothly for many years.



Our chassis are designed with static calculations that ensure the load mounted on them is transmitted to the ground in a balanced manner; this prevents chronic issues such as the container stretching over time or doors and windows becoming jammed. In our single-room model measuring 300 × 700 centimeters, the base and roof frames are reinforced with extra-strength profiles, allowing the modular structure to be moved repeatedly and remain stable on various ground conditions. This robust structural foundation is the most concrete proof of why MZ Ticaret products are the first choice in every demanding environment, from tough construction sites to hobby gardens.
Advanced Technology Insulation Systems and Climate Control Performance
The most critical factor determining comfort in container structures is thermal and acoustic insulation. At MZ Ticaret, we prevent extreme heat or cold from the outside environment from penetrating the interior by using high‑density polyurethane or stone‑wool‑filled sandwich panels in our wall panels. This insulation performance, which we offer as standard in our single‑room containers, minimizes energy costs while preserving interior heat in winter and creating a cool working or living space in summer. We apply the same rigor not only to walls but also to ceiling and floor insulation; we completely block cold that could come from the ground with moisture barriers and special filler materials. Thanks to this holistic insulation approach, our users enjoy a quiet and peaceful atmosphere free from outside noise. Our design, which minimizes thermal bridges, completely eliminates problems such as condensation and dampness—the biggest enemies of modular structures—providing healthy indoor air quality.



Ergonomic Interior Design and Lighting Strategies
MZ Ticaret single-room containers represent the art of using a limited space with maximum efficiency. The 21 square meter spacious interior volume is planned so as not to restrict the user's mobility. During the design phase, the position of the windows is determined in coordinates that will allow natural light to enter the interior in the most efficient way throughout the day. The double window system (80x115 cm in size, coded W1) in our visual model allows for opposite air circulation, optimizing natural ventilation.
High‑durability fiber cement panels (Betopan) used on interior floor surfaces, combined with antibacterial and easy‑to‑clean PVC Mineflo coatings, provide both a hygienic and aesthetic appearance. Electrical and sanitary plumbing lines, fire‑resistant cable channels, and TSE‑certified fittings are installed to elevate safety standards to the highest level. Power outlets and lighting points designed with office desk layout or bed position in mind combine functionality with style.
**Material Quality and Detail Solutions for Long‑Term Use**
The quality of a building lies in its details, and at MZ Ticaret we never leave those details to chance. The exterior door systems used in our containers are metal doors with weather‑resistant, specially insulated, and secure lock mechanisms. In the windows, insulated PVC trim is preferred to support both airtightness and energy efficiency. Every unit leaving our production line is painted with electrostatic furnace paint technology, preserving its original brightness for years without fading from the sun’s UV rays and rain. Each component, from corner posts to rain drainage channels, is mounted with slopes that ensure water is removed from the structure as quickly as possible. This meticulous approach reduces maintenance costs while also preserving the product’s resale value. When you purchase a container signed by MZ Ticaret, you are actually buying an engineering solution you can trust for decades, not just a housing unit.
**Flexible Usage Areas According to Sectoral Needs**
The range of uses for single‑room containers is quite broad thanks to the modular flexibility offered by MZ Ticaret. These structures, used as engineer and foreman offices in the construction sector, also serve as laboratories in mining sites, storage in agricultural areas, or minimal living spaces in hobby gardens. The container’s portable (mobile) nature allows it to be easily moved to a new site once projects are finished. The crane hooks and chassis are designed with strength suitable for repeated loading and unloading. In line with our customers’ special requests, we also offer options to add a small kitchenette or a compact wet area (WC/Shower) to this single‑room layout, transforming the structure into a fully independent living unit. At MZ Ticaret, our goal is to maintain our leading position in the industry by responding to each customer’s unique needs with the highest production quality and the most economical solutions. Working with us means achieving quality without compromising speed.

